Municipio y Provincia retomaron la construcción del Centro de Desarrollo Infantil en Pico de Oro
3/10/2025

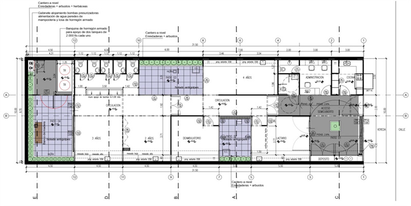
La articulación de ambas administraciones posibilitó la reanudación de la edificación del establecimiento situado en calle Hungría, entre Madrid y La Haya, tras su paralización en diciembre de 2023 con más del 30% de avance.

“Ante la ausencia de inversión nacional en materia de obra pública, la labor en conjunto con el gobierno provincial fue necesaria para garantizar espacios propicios de formación y crecimiento a las infancias varelenses”, subrayó el mandatario comunal, Andrés Watson.

El proyecto, sobre una superficie de 255 m2, contempló salas para niños y niñas de 1 a 4 años de edad, lactario, cocina, administración, sanitarios, patios internos de recreación con áreas lúdicas, entre otras prestaciones. Estimaron una matrícula disponible con cupos destinados a 60 chicos y chicas.

En primera instancia, planificaron el inicio de tareas preliminares de limpieza, armado de cerco y colocación de cartelería el lunes 6 de octubre.



Recibí noticias por correo electrónico


  • aumentar
  • reducir
  • Mail
  • Imprimir
911
Emergencias policiales
0800-999-1234
Línea gratuita municipal
100 4255-2022
Bomberos voluntarios
107
SAME
mapa de Florencio Varela

isologotipo de la Municipalidad de Florencio Varela
25 de Mayo 2725
Florencio Varela
C.P.: 1888 / (+5411) 4237-1601
contacto@varela.gob.ar